PROMOCJA - POMPA CIEPŁA W CENIE DOMU!
Inwestycja w trakcie realizacji
Pierwszy etap to zespół 6 domów jednorodzinnych! Powstaje w miejscowości Krynice gm. Dobrzyniewo Duże. Wspaniałe, ciche miejsce nieopodal szosy Ełckiej - do obwodnicy miasta Białystok jest ok. 12km. W miejscowości znajduje się sklep spożywczy oraz szkoła podstawowa, natomiast do Szkoły Podstawowej w Dobrzyniewie Dużym jest 3km, oraz 5km do Zespołu Szkolno-Przedszkolnego w Nowym Aleksandrowie. Domy w Krynicach to także świetna baza wypadowa na piesze lub rowerowe wycieczki po pięknych, pełnych zieleni terenach!
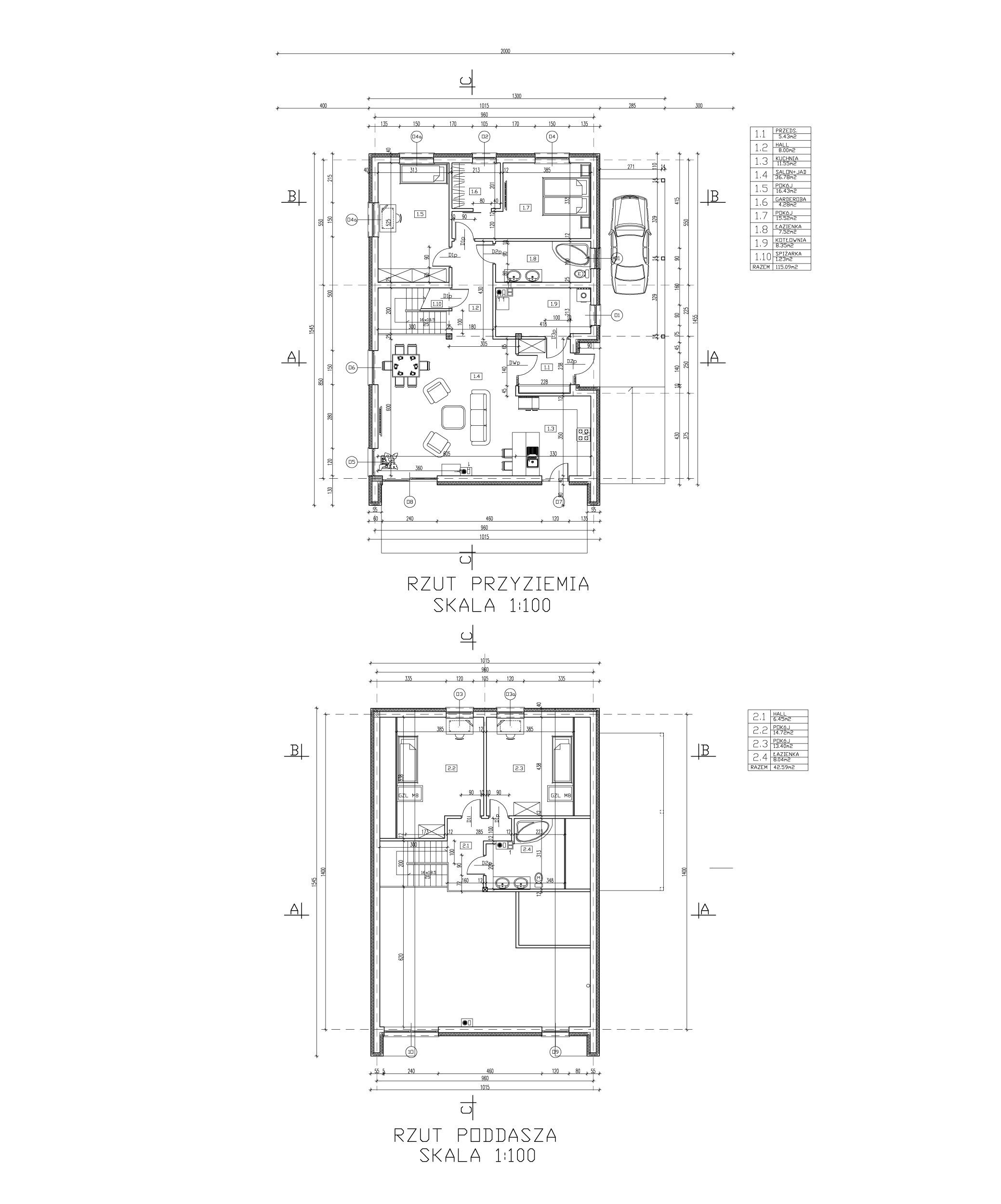
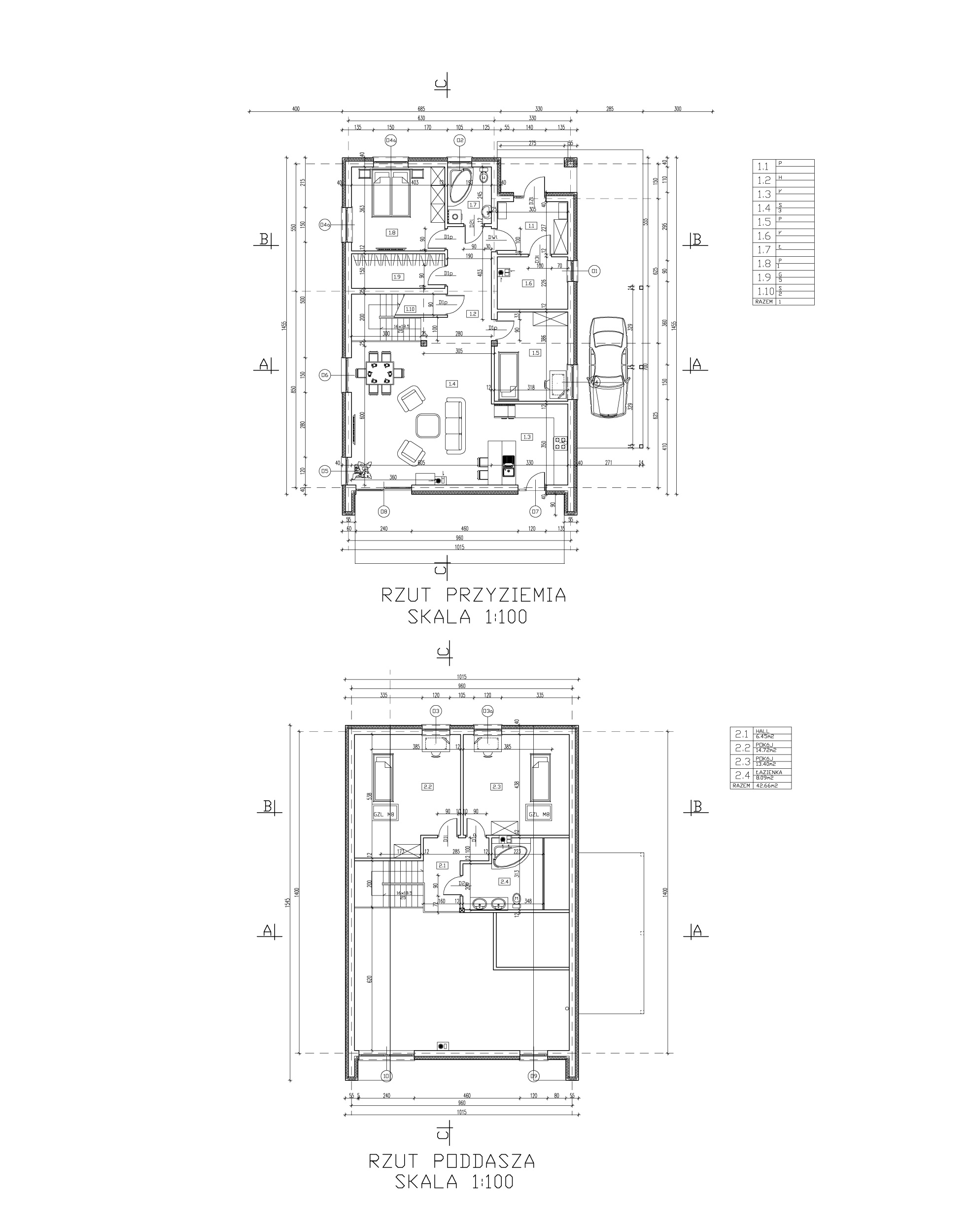
Wszystkie domy będą miały ogrodzone działki, podjazdy z kostki polbruk, wodociąg, szambo lub oczyszczalnię, światłowód, elektrykę, hydraulikę oraz instalację alarmową.
Domy w zabudowie jednorodzinnej w miejscowości Krynice gm. Dobrzyniewo Duże to nie tylko wygoda posiadania własnego domu ale przede wszystkim spokój terenów podmiejskich. Krynice to atrakcyjna miejscowość, otoczona z każdej strony naturą. Wszędzie w około domów są lasy i pola. Nie brakuje tu saren czy jeleni, a każdy wytrwały obserwator z pewnością spotka tu wiele pięknych gatunków ptaków. Tereny wokół Krynic idealnie nadają się do spacerów pieszych oraz wycieczek rowerowych.
Kolejnym ważnym elementem umiejscowienia domów jednorodzinnych w Krynicach jest ich oddalenie od miejskiego zgiełku przy zachowaniu niezwykłej bliskość do najpotrzebniejszych miejsc. Stąd w szybki sposób dostaniemy się do przystanku komunikacji miejskiej (5min. piechotą), szkoły podstawowej (5min. samochodem) czy też obwodnicy Białegostoku (10 min. samochodem). Wracając z pracy główną drogą mijamy galerię handlową ze sklepem wielkopowierzchniowym więc przy okazji można zrobić większe zakupy. Z mniejszymi potrzebami zakupowymi z pewnością poradzą sobie sklepy zarówno w samych Krynicach jak i w okolicy (np. w Dobrzyniewie).
Nasze domy jednorodzinne w Krynicach to nowoczesne budynki, zaprojektowane zgodnie z najnowszymi trendami. Wszystkie zostaną oddane w stanie deweloperskim oraz będą miały ogrodzone działki, podjazdy z kostki polbruk, wodociąg, szambo lub oczyszczalnię, światłowód, elektrykę, hydraulikę oraz instalację alarmową.

Jeśli masz jakiekolwiek pytania lub jesteś
zainteresowany naszą ofertą, napisz
do nas - odpowiadamy na wszystkie e-maile!
519 770 979
kul-bud@wp.pl
Krynice 71, 16-002 Dobrzyniewo Duże
(c) 2021 KUL-BUD Tomasz Kulikowski firma budowlana - All Rights Reserved.